COOK COUNTY HEALTH & HOSPITAL SYSTEMS

Stroger Hospital Expansion

Chicago, IL

Completed Fall 2018

 

IMG_5698.JPG

For the expansion/redevelopment of the Stroger Hospital campus, Cook County Health & Hospital Services chose to implement an Integrated Project Delivery approach, bringing architects, contractors, consultants, and selected manufacturers together from concept design to close out. This approach allowed for rapid and budget effective delivery of a new, 90,000 sq. ft ambulatory care facility for Cook County’s central campus. This facility also includes several professional offices, including dentists and ophthalmologists, an roughly 120,000 sq.ft. of sorely needed administrative and education space.

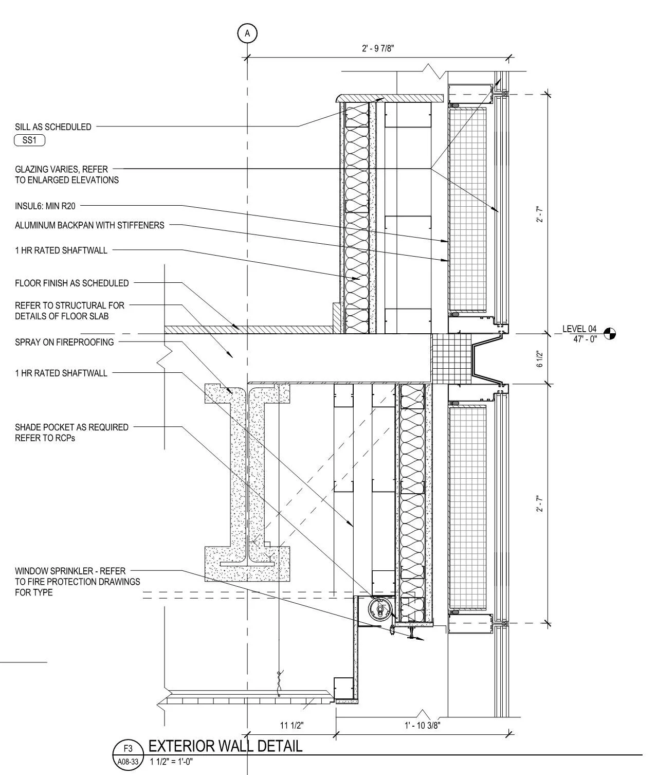
As a member of this team, I developed the design with constant interaction with the contractor and user groups. I worked closely with senior architects as well as the curtain wall manufacturer to develop the design, ensure it met performance and aesthetic requirements, and to develop the final details in a holistic manner.

The glass exterior of the facility was envisioned as a modern response to the more classically inclined architecture of the surrounding campus. Cook County was determined that the new facility provide a modern aesthetic to match the modern level of care that the facility would ultimately provide to the public. Additionally, the the building is expected to be the centerpiece of future future development and reinvention. The modern language developed here provided enough flexibility to achieve these goals.

In order to achieve a consistent quality of interior finish, and to aid in achieving LEED accreditation, the team went with a triple-paned exterior glazing system for all floors above the ground floor. The pattern along the north, east and west facades was created using back painted glass on the innermost panel, providing a level of depth and uniformity across the entirety of the facade system. The pattern itself reacts to the specifics of the interior program: where privacy is most needed the pattern is its most dense, where transparency is preferred, the pattern is open.

Clinical spaces requiring travel are kept nearer to the ground level, with the occupied office spaces occupying the upper floors.

The building ‘opens up’ to the busy southwest corner of Damen and Polk. At the ground level, low-iron glass was utilized to provide for greater transparency.

The pattern along the north facade of the clinical floors provides the most density, allowing for patient privacy.